Skip to main content
Geringer CO2-Fussabdruck

Erweiterung Carlo-Schmid-Gymnasium

Geringer CO2-Fussabdruck

Erweiterung Carlo-Schmid-Gymnasium

Holz-Lehm
Hybrid
Bauweise

Das Carlo-Schmid-Gymnasium soll inhaltlich weiterentwickelt und von einer 4- auf eine 5-zügige Schule ausgebaut werden. Wettbewerbsaufgabe war die Konzeptplanung für einen Ergänzungsbau.

Architektonische und städtebauliche Konzeption

Der Schulcampus ist geprägt von Gebäuden unterschiedlicher Bauweise und Bauzeit, die – wenn überhaupt - nur eine lose Verbindung miteinander eingegangen sind. 

Der Entwuf nimmt deshalb die Achsbezügen der einzelnen Gebäude auf. So entsteht ein Ensemble aus Einzelelementen, die sich gegenseitig ergänzen und stärken.

 

 

Geringer CO2 Fussabdruck

Die Holzskelett-Konstruktion in Verbindung mit einer Holz-Lehm-Hybrid-Deckenkonstruktion reduziert die CO2 Emissionen bereits beim Bau. Im Berieb gewährleistet die Holz-Lehm-Decke den größtmöglichen sommerlichen Wärmeschutz.

Integrales Klimakonzept

Bei Schulen gibt es drei prinzipielle Themenbereiche, die es mit einem integralen Klimakonzept zu lösen gilt:

  • Sicherstellung der Luftqualität ohne Zugerscheinungen, insbesondere bei niedrigen Außentemperaturen
  • Minimierung des Energiebedarfs v.a. bei den Hauptenergieverbrauchern Kunstlicht und Heizung
  • Begrenzung der sommerlichen Raumtemperaturen

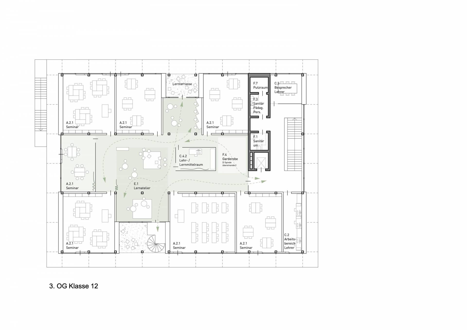
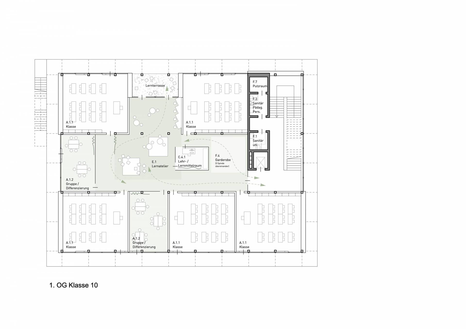
Raumqualitäten

Die Lerncluster sind mit einer großzügigen Mitte organisiert, die mehrseitige Ausblick- und Belichtungsmöglichkeiten aus den inneren Zonen erhalten.

Erweiterung Carlo-Schmid-Gymnasium

  1. Wettbewerb 2024
    Anerkennung
  2. Standort
    Tübingen
  3. Auslober
    Universitätsstadt Tübingen

L/A Team

Hendrik Dörflinger, Imke Kraschinski, Valerie Kuberczyk

Modellbau

  • werkstadtidee GbR

Fachplanende

  • Energieplanung
    Transsolar Energietechnik, München